Fatih Architecture Studio Banner
Fatih Architecture Studio Banner

Wacana Rumah Subsidi Mini 18 Meter Persegi Tuai Pro dan Kontra, Target MBR Perkotaan dan Generasi Muda

Pemerintah kaji perubahan regulasi rumah subsidi dengan luas bangunan hanya 18 m². Lippo Group ikut dalam pendanaan proyek senilai Rp2 triliun.

Rumah Subsidi Mini (*/Istimewa)
Rumah Subsidi Mini (*/Istimewa)

BEDAH EDITORIAL — Pemerintah Indonesia tengah menggodok rencana radikal dalam program perumahan rakyat: pengembangan rumah subsidi berukuran mini dengan luas bangunan hanya 18 meter persegi dan luas tanah minimal 25 meter persegi. Wacana ini langsung menyita perhatian publik dan menuai beragam reaksi, mulai dari pujian karena dianggap solusi hunian murah di tengah krisis lahan, hingga kritik keras karena dianggap tidak layak secara sosial dan fungsional.

Gagasan ini tercantum dalam draf revisi Keputusan Menteri Pekerjaan Umum dan Perumahan Rakyat (PUPR) yang kini masih dalam tahap pembahasan dan belum final. Jika disahkan, maka standar rumah subsidi yang selama ini mengacu pada luas minimal bangunan 21 m² dan tanah 60 m² akan berubah drastis.

“Ini adalah salah satu opsi untuk mempercepat penyediaan 3 juta rumah bagi masyarakat berpenghasilan rendah (MBR), khususnya di wilayah perkotaan dengan keterbatasan lahan,” ujar Direktur Jenderal Perumahan Kementerian PUPR, Iwan Suprijanto, seperti dikutip dari Medcom.id.

Pemerintah beralasan bahwa rumah subsidi mini dapat menjadi jawaban atas stagnasi program sejuta rumah yang sejak pandemi mengalami perlambatan. Dengan ukuran lebih kecil, biaya pembangunan bisa ditekan, lahan bisa lebih banyak dimanfaatkan, dan target kelompok muda atau pasangan baru lebih realistis dijangkau.

Baca Juga:  Pemerintah Italia Jual Rumah Seharga Rp50 Ribuan: Peluang Emas untuk Tinggal di Kota Bersejarah

Dibiayai Konglomerat, Dikerjakan Developer Kecil

Salah satu aspek mengejutkan dari proyek ini adalah skema pendanaannya. Diberitakan oleh Kompas.com, proyek rumah subsidi mini ini bakal dibiayai oleh grup konglomerasi besar, termasuk Lippo Group, yang telah menyatakan kesiapan investasi senilai Rp2 triliun sebagai tahap awal. Lippo tidak akan menggarap langsung proyek ini, melainkan menyuntikkan dana ke pengembang menengah dan kecil yang lebih memahami medan dan kebutuhan lokal.

“Fokus kami adalah mendukung pemerataan akses hunian, terutama di segmen yang selama ini kurang dilayani oleh pasar,” kata CEO Lippo Karawaci, John Riady, dalam wawancara eksklusif.


Cicilan Hanya Rp600 Ribu Sebulan

Pemerintah mengklaim bahwa rumah subsidi mini ini akan tetap berada dalam skema KPR subsidi FLPP, dengan target angsuran Rp600 ribu hingga Rp700 ribu per bulan. Angka ini jauh lebih rendah dibandingkan cicilan rumah subsidi reguler yang saat ini berkisar Rp900 ribu hingga Rp1,2 juta.

Baca Juga:  Tol Betung–Tempino Seksi 4 Siap Operasi

Namun, skema cicilan dan detail pembiayaan masih dalam tahap diskusi dengan bank-bank penyalur KPR. Pemerintah juga sedang merancang aturan teknis untuk mempermudah pengembang dalam menyampaikan proposal proyek dengan ukuran baru ini. (IDN Times).


Lebih Kecil dari Ethiopia

Meski digadang-gadang sebagai terobosan, rumah subsidi mini ini tak lepas dari kritik tajam. Salah satu sorotan datang dari perbandingan internasional. Menurut laporan Bisnis.com, rumah subsidi 18 m² ini bahkan lebih kecil dari model rumah bantuan di Ethiopia (20–25 m²), Filipina (22–25 m²), dan Malaysia (40–45 m²).

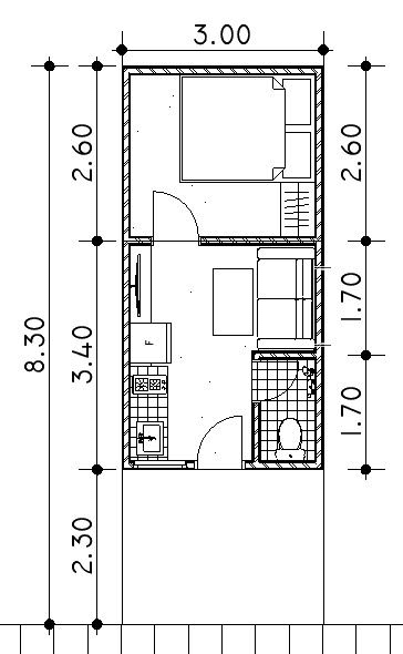
Denah Rumah Subsidi Mini 18 meter persegi

Pengamat tata kota Universitas Trisakti, Yayat Supriatna, menyebut bahwa “rumah sebesar 18 meter persegi hanya cocok untuk satu orang, bukan keluarga. Dalam jangka panjang ini bisa memicu tekanan sosial dan ketimpangan ruang hidup.”

Hal senada diungkapkan arsitek muda Muhammad Fajrin, yang menilai bahwa ruang hidup sekecil itu tidak layak untuk rumah tinggal jangka panjang. “Kalau hanya satu kamar, ruang makan dan dapur menyatu, ke mana anak-anak akan bermain atau belajar?” katanya.

Baca Juga:  Lingkungan Hunian, Seberapa Penting?

Masih Tahap Uji Konsep

Pihak Kementerian PUPR menyatakan bahwa belum ada proyek rumah subsidi mini yang dibangun secara massal. Draf keputusan yang beredar masih mengundang masukan dari publik, termasuk asosiasi pengembang, arsitek, dan ahli perumahan. Pengembangan rumah ini juga akan tetap mengikuti standar SNI (Standar Nasional Indonesia), termasuk sirkulasi udara dan pencahayaan.

“Kalau tidak sesuai standar kelayakan, kami tidak akan teruskan. Tapi kalau bisa memenuhi dengan ukuran mini, kenapa tidak?” ujar Iwan Suprijanto.


Solusi atau Bahaya Baru?

Di tengah krisis hunian dan urbanisasi yang kian padat, rumah subsidi mini mungkin menawarkan solusi cepat dan murah. Namun, pertanyaannya: apakah murah berarti layak? Apakah rumah sekecil 18 meter persegi benar-benar bisa disebut “rumah” untuk sebuah keluarga Indonesia?

Para pemerhati perumahan mengusulkan agar desain modular dan fleksibilitas renovasi diberlakukan agar rumah mini ini bisa berkembang sesuai kebutuhan penghuni di masa depan.

“Jangan hanya mengejar kuantitas. Kualitas hidup penghuni juga harus dijaga,” tegas Yayat Supriatna.

Tinggalkan Balasan

Alamat email Anda tidak akan dipublikasikan. Ruas yang wajib ditandai *